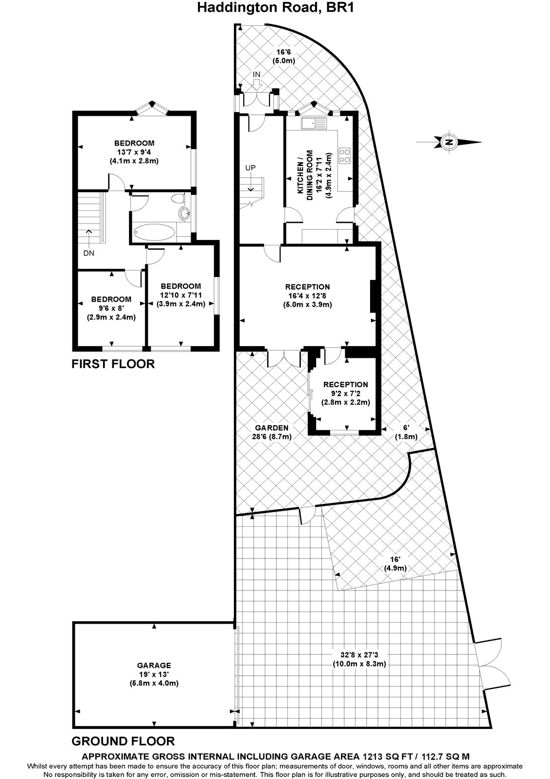
Daniels are delighted to present this spacious and beautifully maintained three bedroom end of terrace house, architect designed and built in 1988, and offered to the market with NO ONWARD CHAIN. The property has been recently redecorated inside and out, benefits from UPVC double glazing, gas central heating, and is within easy reach of Beckenham Hill and Bellingham stations, excellent bus routes to Catford and Bromley, and a selection of highly regarded local schools. Accommodation comprises: A welcoming entrance hallway with new Oak laminate flooring leading into two bright and versatile reception rooms, ideal for family living, entertaining, or use as a home office/playroom. A spacious modern kitchen/dining room with tiled flooring, ample storage, work surfaces, and integrated oven with ceramic hob, plus space for appliances. French doors from the main reception opening to a private patio and the well-kept rear garden. Upstairs, there are three generous bedrooms, including two doubles with dual aspect windows, and a contemporary family bathroom with modern white suite and electric shower over bath. Externally, the property offers both front and rear gardens, designed for low maintenance, and a large double garage accessed via a private gated entrance from the road. This is a rare opportunity to acquire a well-presented, chain-free home in a highly convenient location. Internal viewing is strongly recommended. Key Features: NO ONWARD CHAIN Three good sized bedrooms Two reception rooms Spacious modern kitchen/dining room Contemporary bathroom Front & rear gardens Large double garage Convenient for Beckenham Hill & Bellingham stations Close to shops, schools & leisure facilities
Porch
Door to;
Entrance Hall
Stairs rising to the first floor. Doors to;
Reception Room
4.98m x 3.86m
Door to;
Reception
2.8m x 2.18m
Kitchen/Dining Room
4.93m x 2.41m
First Floor Landing
Doors to;
Bedroom
4.14m x 2.84m
Bedroom
3.9m x 2.41m
Bedroom
2.9m x 2.44m
Bathroom
Front Garden
5.03m
Rear Garden
8.69m
Garage
5.8m x 3.96m
MATERIAL INFORMATION
Tenure
Freehold.
Council Tax Band
D.
Broadband
Up to 1,000 Mbps. For more information please visit https://checker.ofcom.org.uk/
Mobile Coverage
All good for voice calls and data on all networks. For more information please visit https://checker.ofcom.org.uk/
Mains Services
Gas/Electricity/Water/Drainage.
Heating System
Gas central heating.
Rights of Way
Yes - there is right of access to garage at the rear of the property for the neighbouring property.
Easements & Restrictive Covenants
Yes.
 
                          
        