Croydon Croydon

Cecil Road, Croydon,

3 bedroom Property Under Offer

Offers in excess of £375,000

  • 3 bedroom
  • 1 bathroom
  • 1 reception

Key Features

  • • *Spacious three-bedroom end of terrace home with period features.
  • • *Sought-after Cecil Road location near Mitcham and Thornton Heath.
  • • *Bright reception room with bay window and adjoining dining area.
  • • *Separate kitchen with appliances, utility room, and cloakroom.
  • • *Three bedrooms and a first-floor family bathroom.
  • • *Secluded rear garden, double glazing, and gas central heating.
  • • *Close to transport links, schools, and green spaces.
  • • *Buyers Commission May Be Required

Description

Spacious three-bedroom end of terrace family home, boasting period features and situated on the sought-after Cecil Road, Croydon. Ideally positioned on the borders of Mitcham, Croydon, and Thornton Heath, the property offers convenient access to excellent transport links, local schools, a variety of shops, and expansive green spaces including Beddington Park and Mitcham Common. Upon entry, a welcoming entrance hallway provides access to the generous living space. The spacious reception room features an attractive bay window, allowing for ample natural light, and an archway leading to the dining area, creating the perfect place to unwind. A separate fitted kitchen is well-equipped with integrated appliances, complemented by a utility room and a ground floor cloakroom for added convenience. The first floor provides 3 bedrooms and a family bathroom which has been thoughtfully relocated to the first floor, enhancing the property’s practicality and modern appeal. Additional benefits include double glazed windows throughout, gas central heating via radiators, and a secluded rear garden offering privacy and gated side access. The property benefits from excellent transport links and a range of nearby schools. Several tram stops are within walking distance, including Therapia Lane (0.5 miles), Ampere Way (0.6 miles), and Waddon Marsh (0.8 miles). For rail connections, West Croydon Station is 1.2 miles away, with Thornton Heath (1.5 miles), Waddon (1.6 miles), East Croydon Station (1.9miles) and Mitcham Junction (2.1 miles) also easily accessible. Families will appreciate the selection of local schools, such as West Thornton Primary School just 0.2 miles away, along with Gonville Academy and Paxton Academy Sports & Science (both 0.9 miles), Elmwood Infant School (1.0 mile), and Harris Primary Academy Croydon (1.2 miles). Older students have several excellent options nearby, including The Archbishop Lanfranc Academy (0.5 miles), Harris Invictus Academy Croydon (1.2 miles), Harris Academy Merton (1.5 miles), St Mary’s Catholic High School (1.5 miles), and Wallington County Grammar School (2.5 miles). This is a great opportunity not to be missed, call today to arrange an appointment to view. EPC Rating D. *Spacious three-bedroom end of terrace home with period features. *Sought-after Cecil Road location near Mitcham and Thornton Heath. *Bright reception room with bay window and adjoining dining area. *Separate kitchen with appliances, utility room, and cloakroom. *Three bedrooms and a first-floor family bathroom. *Secluded rear garden, double glazing, and gas central heating. *Close to transport links, schools, and green spaces. *Buyers Commission May Be Required

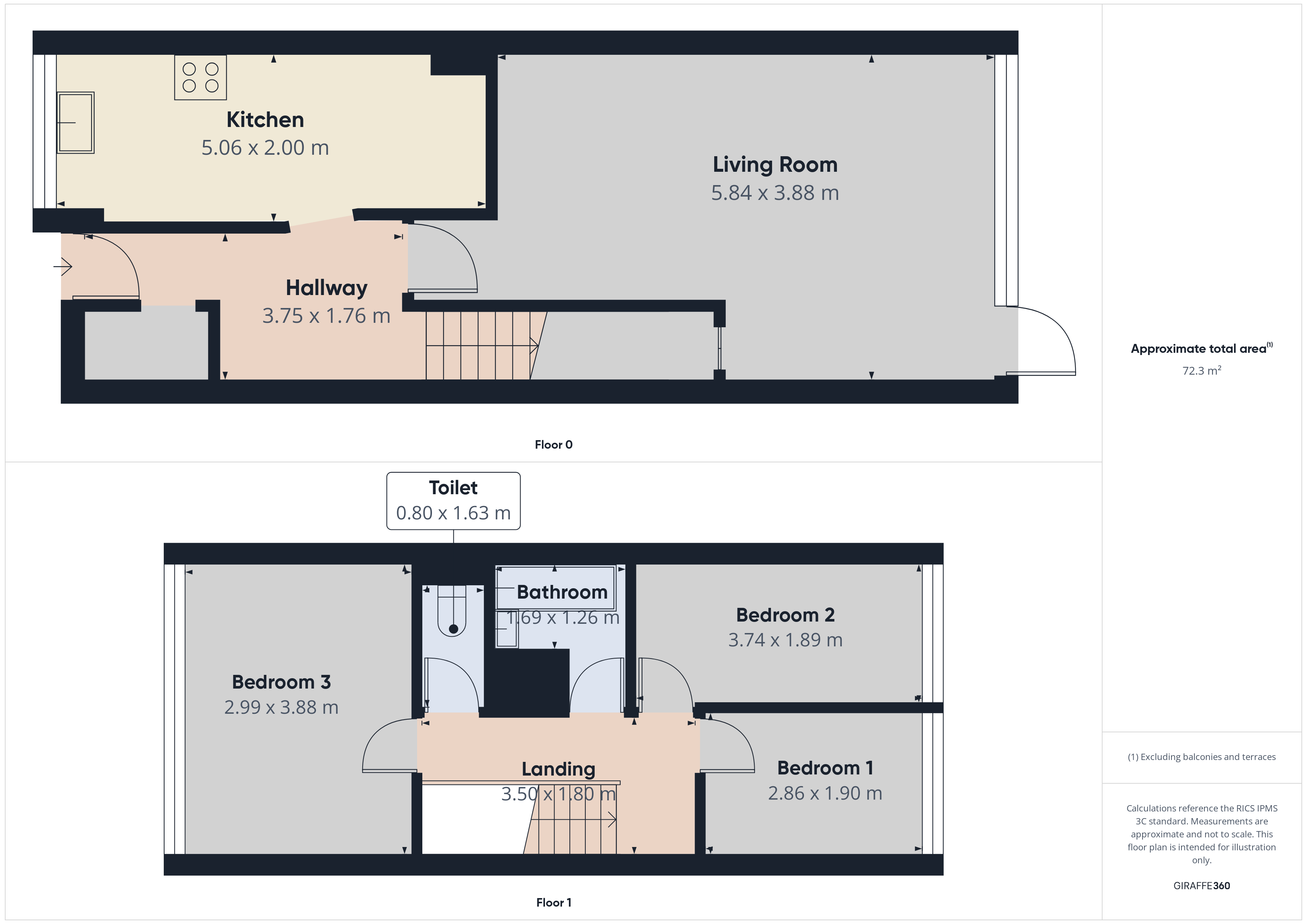
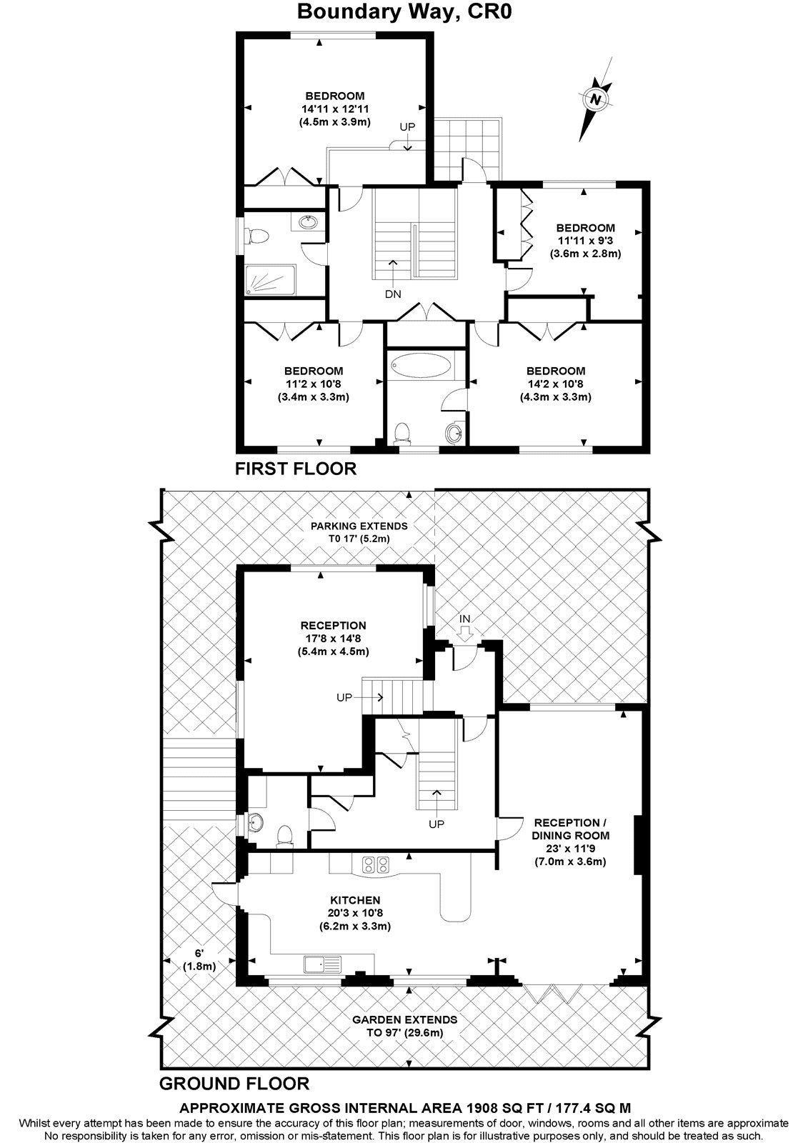
Rooms

Entrance Hall

Doors to;

Dining Room

4.3m x 4.17m

Stairs rising to the first floor. Access to;

Reception Room

4.4m x 3.12m

Kitchen

2.77m x 2.62m

Access to;

Utility Space

Door to;

Cloakroom

First Floor Landing

Doors to;

Bedroom

4.2m x 3.48m

Bedroom

3.43m x 2.51m

Bedroom

2.3m x 1.9m

Shower Room

Front Garden

Rear Garden

8.64m

Buyers Commission May Be Required*

Full details available upon request.

*This property is being marketed by Choices on behalf of the seller on the basis that the buyer pays our fee of between 2.4% incl VAT and 3% incl VAT of the net purchase price. Unless otherwise agreed offers will therefore be submitted to the seller net of our fee.

MATERIAL INFORMATION

Tenure

Freehold.

Council Tax Band

D.

Broadband

Ultrafast up to 1,800 Mbps. For more information please visit https://checker.ofcom.org.uk/

Mobile Coverage

Good for voice calls and data. For more information please visit https://checker.ofcom.org.uk/

Mains Services

Gas/Electricity/Water-metered/Drainage.

Heating System

Gas central heating.

Right of Way

Part of the passage and gate to the side is subject to a right of way. Shared access with neighbour.

Residents Permit

The seller advises the road is permit parking - available through the local council at a cost.

On Street Parking


Location


Floorplan

Floorplan

EPC

EPC for Croydon

Croydon Branch

Request a Viewing
Share

Similar Properties

Croydon
Under Offer

Croydon

2 Bed Property Under Offer
Guide price Guide Price £270,000
Croydon
For Sale

Croydon

2 Bed Flat For Sale
Guide price Offers in excess of £300,000
CROYDON, Surrey
For Sale

CROYDON, Surrey

2 Bed Property For Sale
Guide price Guide Price £250,000