Garlands Road, REDHILL, Surrey Garlands Road, REDHILL, Surrey

Garlands Road, REDHILL

1 bedroom Property for sale

Guide Price £170,000

  • 1 bedroom
  • 1 bathroom
  • 1 reception

Key Features

  • • *One double bedroom apartment
  • • *Third floor
  • • *Reception room open to kitchen
  • • *Allocated parking space
  • • *Within walking distance to Redhill town centre & train station
  • • *Ideal for first time buyers or investors
  • • *Long lease
  • • *No chain
  • • *Buyers Commission May Be Required

Description

*GUIDE PRICE £170,000 - £190,000* Ideal for first-time buyers, investors or professionals seeking convenience and comfort, this spacious and well-presented one-bedroom modern apartment with allocated parking is a fantastic opportunity not to be missed. The property offers a welcoming entrance hall leading through to a bright and airy reception room, open plan to a stylish fitted kitchen — perfect for both relaxing and entertaining. There is a generously sized double bedroom with built-in storage, along with a contemporary bathroom suite. Ideally positioned within walking distance of Redhill town centre, the apartment provides excellent access to a wide range of shops, restaurants, local amenities and Redhill train station, making it an excellent choice for commuters. An internal viewing is highly recommended to fully appreciate what this property has to offer. Call today to arrange your appointment. EPC Rating: C

Rooms

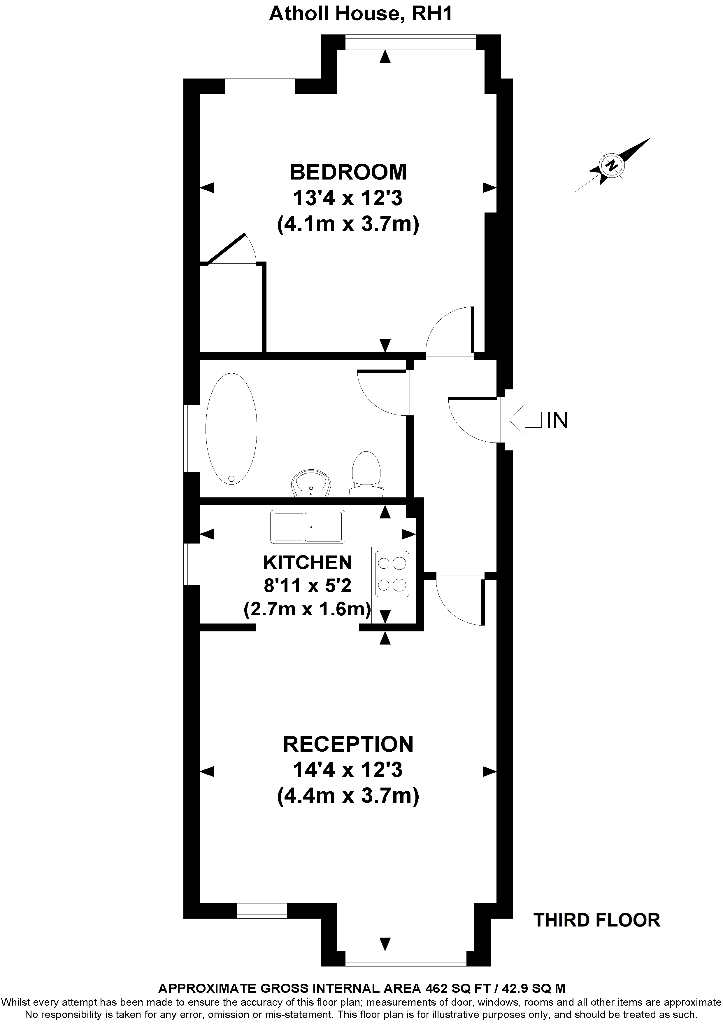
Entrance Hall

Doors to;

Reception Room

4.37m x 3.73m

Open to;

Kitchen

2.72m x 1.57m

Bedroom

4.06m x 3.73m

Bathroom

Parking

Allocated parking space.

Buyers Commission May Be Required*

Full details available upon request

*This property is being marketed by Choices on behalf of the seller on the basis that the buyer pays our fee of between 2.4% incl VAT and 3.6% incl VAT of the net purchase price. Unless otherwise agreed offers will therefore be submitted to the seller net of our fee.

MATERIAL INFORMATION

Tenure

Leasehold

Term: 150 years from 16 March 2018.

Council Tax Band

C.

Service Charge

£1,823.75 per annum

Estimated charges for the period 25 June 2025 - 24 June 2026. Payments taken half yearly. Reviewed annually. Includes building insurance and reserve fund.

Ground Rent

£150 per annum

Payments taken half yearly. Review period - £150 per annum for the first 25 years of the term, every 25 years there after a further £150 per annum. Together with throughout the term such further or additional rent (if any) may be reserved by the lease.

Broadband

Up to 1000 Mbps. For more information please visit https://checker.ofcom.org.uk/.

Mobile Coverage

All good for voice calls and data. For more information please visit https://checker.ofcom.org.uk/.

Mains Services

Gas/Electricity/Water-metered/Drainage.

Heating system

Gas radiators.

Easements

Yes - In the original lease.

Restrictive Covenants

Yes – Relating to commercial use of the property, erection of buildings and boundary obligations. Please note that this is a brief summary of key information contained within the property title and any prospective purchaser should seek further clarification from their conveyancer.

N.B

Please note, photos were taken prior to tenants moving in.


Location


Floorplan

Floorplan

EPC

EPC for Garlands Road, REDHILL, Surrey

Croydon Branch

Request a Viewing
Share

Similar Properties

Pease Pottage, Crawley, West Sussex
For Sale

Pease Pottage, Crawley, West Sussex

4 Bed Semi-detached house For Sale
Guide price Guide Price £550,000
Crawley, West Sussex
Under Offer

Crawley, West Sussex

3 Bed Terraced House Under Offer
Guide price Guide Price £290,000