Crawley, West Sussex Crawley, West Sussex

Waddington Close, Crawley, West Sussex

3 bedroom Terraced House Under Offer

Guide Price £290,000

  • 3 bedroom
  • 1 bathroom
  • 1 reception

Key Features

  • • *NO CHAIN
  • • *Three bedroom terraced house
  • • *Fitted kitchen
  • • *Rear garden with access to parking area
  • • *Easy reach of Ifield train station with links to London and Brighton
  • • *Good selection of local schools including Ifield Community College and Holy Trinity
  • • *Buyers Commission May Be Required

Description

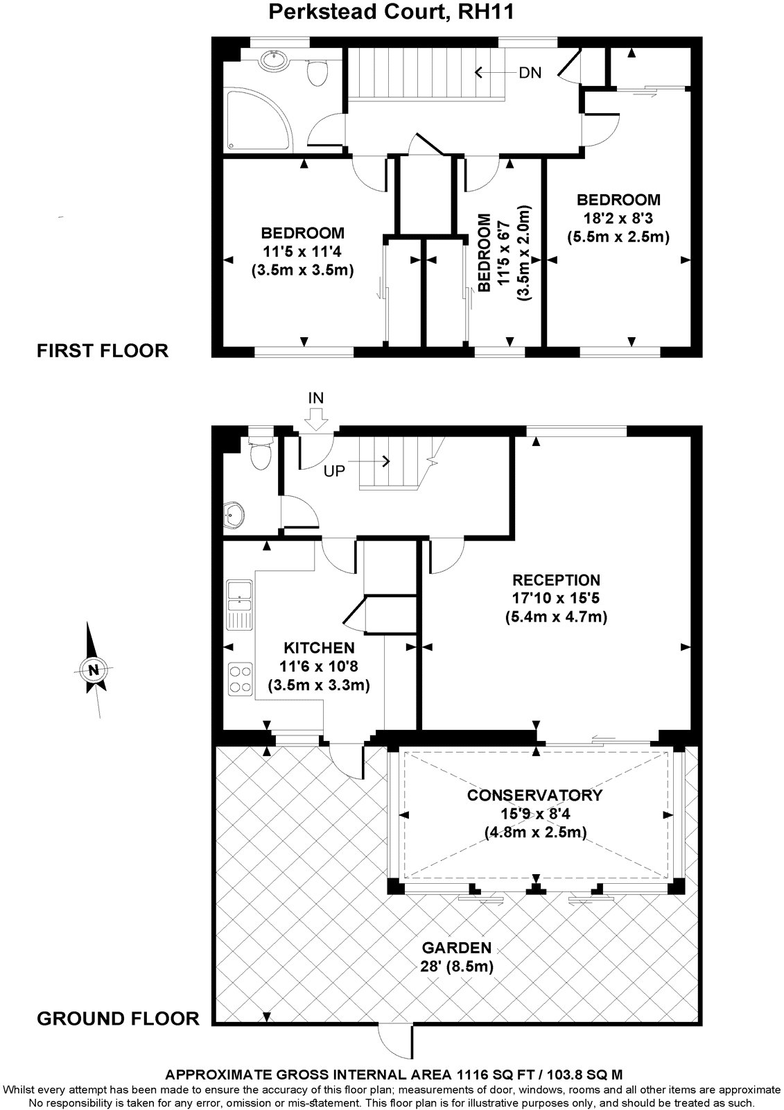
*GUIDE PRICE £290,000 - £300,000* Choices are delighted to welcome this three bedroom terraced house in a popular part of Bewbush, offered with no onward chain. The property comprises: entrance hall and downstairs toilet, fitted kitchen and a good sized reception room which offers plenty of space for the whole family to enjoy a relaxing evening. Views and access to the rear garden can be found to the rear of the property through the conservatory. Upstairs you can find two large double bedrooms, a third bedroom and a family bathroom. Externally the property boasts, a low maintenance rear garden with back gate access which leads onto the pavement and on street parking area. To the rear of the property there is plenty of areas to park for free on a first come first serve basis. Location wise the property is perfectly situated in a central area, close to all key amenities. Ifield Train station is a short 4 minute drive away to get to primary locations such as London and Brighton. As well as Secondary schools such as Holy Trinity and Ifield Community College being under a 5 minute drive away also. Gossops Green parade is a 14 minute walk away or a 2 minute drive. Call today to fully appreciate what this property has to offer. EPC Rating C. *NO CHAIN *Three bedroom terraced house *Fitted kitchen *Rear garden with access to parking area *Easy reach of Ifield train station with links to London and Brighton *Good selection of local schools including Ifield Community College and Holy Trinity *Buyers Commission May Be Required

Rooms

Entrance Hall

Stairs rising to the first floor. Doors to;

Reception Room

5.44m x 4.7m

Doors to;

Conservatory

4.8m x 8.4

Kitchen

3.5m x 3.25m

Cloakroom

First Floor Landing

Doors to;

Bedroom

5.54m x 2.51m

Bedroom

3.48m x 3.45m

Bedroom

3.48m x 2m

Bathroom

Rear Garden

8.53m

Buyers Commission May Be Required*

Full details available upon request

*This property is being marketed by Choices on behalf of the seller on the basis that the buyer pays our fee of between 2.4% incl VAT and 3% incl VAT of the net purchase price. Unless otherwise agreed offers will therefore be submitted to the seller net of our fee.

MATERIAL INFORMATION

Tenure

Freehold.

Council Tax Band

C.

Broadband

Up to 1,000 Mbps. For more information please visit https://checker.ofcom.org.uk/

Mobile Coverage

Good for voice calls on O2 and vodafone. Good for data on Vodafone. For more information please visit https://checker.ofcom.org.uk/

Mains Services

Gas/Electricity/Water/Drainage.

Heating System

Gas central heating.

Restrictive Covenants

Yes.

On Street Parking


Location


Floorplan

Floorplan

EPC

EPC for Crawley, West Sussex

Croydon Branch

Request a Viewing
Share